Erstbezug barrierefreier ETW im DG mit Aufzug in guter Lage – provisionsfrei direkt vom Eigentümer!
49143 Bissendorf, Dachgeschosswohnung zum Kauf
Kontaktdaten
-
NameHerr Dipl.-Ing. Christian Düvel
-
AdresseKlusstraße 3
49074 Osnabrück -
E-Mail Direkt
-
Tel. Durchwahl
Objektdaten
-
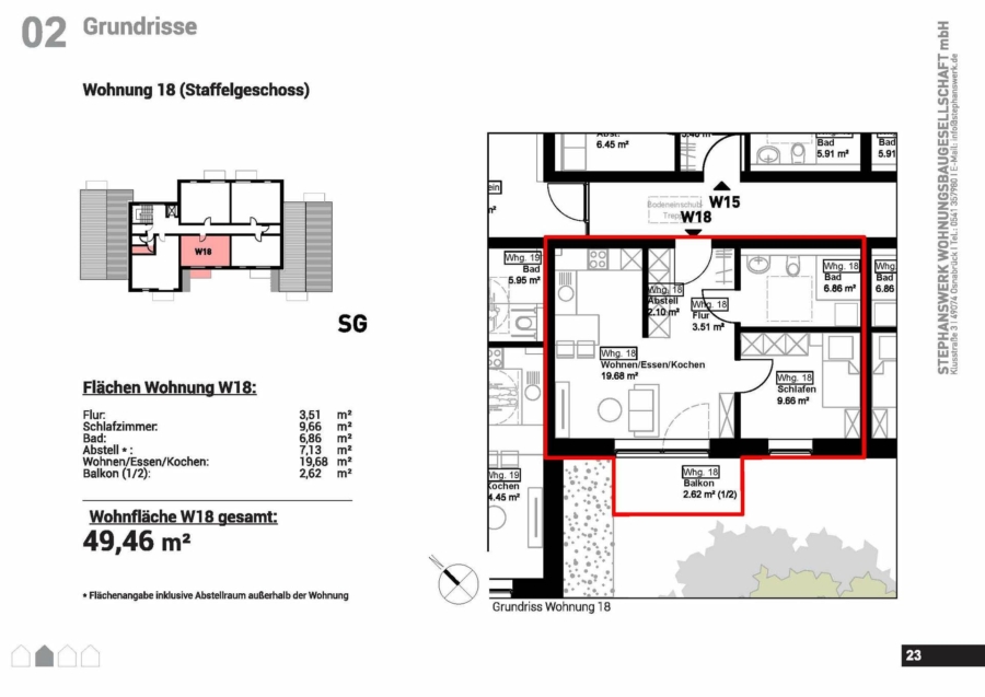
Objekt-ID0018
-
ObjekttypenDachgeschosswohnung, Wohnung
-
Adresse49143 Bissendorf
-
Etage2
-
Etagen im Haus2
-
Wohnfläche ca.44,45 m²
-
Nutzfläche ca.3,95 m²
-
Zimmer2
-
Schlafzimmer1
-
Badezimmer1
-
Baujahr2026
-
ZustandErstbezug
-
Ausstattunggehoben
-
Stellplätze gesamt1
-
Stellplatz7.500 EUR (Anzahl: 1)
-
Hausgeld167 EUR
-
Kaufpreis210.600 EUR
Ausstattung / Merkmale
- ✓ Balkon/Terrasse
- ✓ Barrierefrei
- ✓ Garten/Gartennutzung
- ✓ Personenaufzug
Energieausweis
-
Energieausweiswird bei Besichtigung vorgelegt
Objektbeschreibung
Beschreibung
In sehr guter und zentraler Lage von Schledehausen errichtet die Stephanswerk Wohnungsbaugesellschaft mbH in unmittelbarer Nachbarschaft zum Kurgarten ein Mehrfamilienhaus mit insgesamt 19 Wohnungen sowie Gemeinderäumen für die kath. Kirchengemeinde St. Laurentius.
Beispielhaft ist hier eine Wohnung aufgeführt. Sehen Sie sich doch gern das gesamte Exposee mit allen Wohnungen an und melden sich dann bei uns!
Ausstattung
Die Wohnanlage wird in massiver Bauweise unter Berücksichtigung der Vorgaben der Energieeinsparverordnung errichtet. Die Wärmeversorgung (Heizung) erfolgt über eine Elektrowärmepumpe (Luft/Wasser) und einer Photovoltaikanlage.
Das Mehrfamilienhaus ist über die „Große Straße", die "Bergstraße" sowie vom Kurgarten aus erreichbar. Am Gebäude befinden sich ausreichend Bewohnerparkplätze. Von hier gelangt man durch die gemeinschaftlichen Außenanlagen über eine Rampe zum Eingang und Treppenhaus mit der barrierefreien Erschließung. Vom Treppenhaus mit integrierten Aufzug gelangt man zu zwei Vollgeschossen und einem Staffelgeschoss.
Die Wohnungsgrößen im Gebäude variieren von ca. 46,43 m² bis 110, 76 m².
Herzstück jeder Wohnung ist der großzügige und lichtdurchflutete Wohn- und Essbereich mit einer großen Fensterfassade. Über eine Tür gelangt man auf die Terrasse bzw. den
Balkon. Von hier aus hat man einen wunderbaren Blick entweder auf den angrenzenden Kurpark und in die gemeinschaftlichen Grünanlagen oder auf die nördlich liegende St.
Laurentius-Kirche.
- erstklassige Lage im Ortskern
- Kunststofffenster mit 3-fach-Isolierverglasung
- elektrisch bedienbare Rollläden in den Wohn- und Schlafräumen (teilweise)
- Gegensprechanlage mit elektrischem Türöffner
- hochwertige Bodenbeläge
- Bad mit ebenerdiger Dusche
- Fußbodenheizung mit Raumthermostat
- Aufzugsanlage
- PV-Anlage
- PKW-Einstellplatz für jede Wohnung
- Waschmaschinenanschluss in jeder Wohnung
- sämtliche Wohnungen mit Balkon oder Terrasse
- attraktive Altersvorsorge oder Kapitalanlage
Sonstiges
Mit dem Stephanswerk als Bauträger steht Ihnen ein erfahrener und zuverlässiger Partner zur Seite. Das Stephanswerk ist die Wohnungsbaugesellschaft des Bistums Osnabrück und des Bischöflichen Stuhls zu Osnabrück. Ein Schwerpunkt in dem vielfältigen Aufgabenbereich liegt in der Errichtung und Verwaltung von altersgerechten Miet- und Eigentumswohnungen.
Bei weiterem Interesse an einer Wohnung in diesem Objekt teilen Sie mir bitte Ihre Anschrift, E-Mail und Telefonnummer mit. Bei Rückfragen stehe ich Ihnen gerne zur Verfügung.
Lage
Aufgrund der hervorragenden landschaftlichen Lage zwischen Teutoburger Wald und Wiehengebirge eignet sich Schledehausen ausgezeichnet zur Erholung. Die staatliche Anerkennung des Ortes Schledehausen als Luftkurort beweist, dass es sich hier gut leben und atmen lässt. Gepflegte Gastlichkeit sowie gut ausgebaute Rad- und Wanderwege verwöhnen den Radfahrer und Wanderfreund.
Mit vielen Vereinen und den abwechslungs-reichen kulturellen Veranstaltungen kommt auch das gesellige Leben nicht zu kurz.
Einkaufsmöglichkeiten, Ärzte, eine Apotheke, ein Sportzentrum, öffentliche Verkehrsmittel, Hotels und Übernachtungsmöglichkeiten, eine Sparkasse und Geschäfte des täglichen Bedarfs sind fußläufig schnell erreichbar. Auch ein Schwimmbad (Waldbad) gibt es in Schledehausen. Mit Bus und Bahn gelangt man schnell nach Osnabrück oder Melle.
Die ungefähre Position der Immobilie auf Google Maps ansehen (Link auf externe Website)






